FPK-20-30轮船装卸系统专用跑偏开关KBW-220P防爆两级跑偏开关
由于产品型号众多,我司各种电气规格型号齐全,有任何需求可以与我公司销售人员联系,生产各种规格型号的跑偏开关、拉绳开关、倾斜开关、打滑开关、失速开关、溜槽堵塞开关、声光报警器、限位开关、磁性开关、撕裂开关、料流开关等产品,产品适用范围广,用途多,产品销售国内外100多个国家和地区,销售电话:15163766288(微信同号)
FPK-20-30轮船装卸系统专用跑偏开关
产品介绍:
两级跑偏开关是用于检测带式输送机运行过程中输送带跑偏程度并进行以及自动触发紧急停机的一种保护装置。
使用跑偏开关可防止昂贵的输送带受损害以防止进一步的工矿事故和人生伤害。
两级跑偏开关可防止在运行输送系统里是不可缺少的保护装置,其广泛应用于钢铁厂、火力发电厂、水泥厂、化工厂、港口等等。
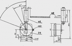
动作说明
示意图中的角度为侧面滚轮的倾斜角度
接点1,2倾斜到20度时闭合,使用与安装:防偏开关可固定在输送机纵梁顶部或底部,动作杆距皮带边缘约25mm。通常安装在皮带两侧距头部或尾部0.3-2米的地方。当皮带跑偏时,迫使动作杆偏离,触动报警开关。两级跑偏开关如果继续偏离,触动别一组开关,输送机就会保护性停机。,恢复到18度时断开
接点4,5倾斜到35度时断开,DDP-LJ2两级跑偏开关适用于皮带输送机,能使皮带输送机在皮带跑偏将导致严重挂边磨损甚至发生撕裂事故前就发出报警信号以及进一步的自动停车。 能及时有效的保护设备安全、避免事故扩大化,达到保障生产、保护设备的目的。另外由于信号可发送至控制系统,方便实现工厂自动化控制,因此又可达到减员增效,集中控制,利于生产与调度的目的。,使用与安装:防偏开关可固定在输送机纵梁顶部或底部,动作杆距皮带边缘约25mm。通常安装在皮带两侧距头部或尾部0.3-2米的地方。当皮带跑偏时,迫使动作杆偏离,触动报警开关。两级跑偏开关如果继续偏离,触动别一组开关,输送机就会保护性停机。,恢复到33度时闭合
接点动作位置根据调整凸轮可变更

防爆两级跑偏开关FPK-20-30经久耐用
两级跑偏开关主要应用在冶金 、电力 、煤岩 、矿山及化工等行业的输送系统中 ,是输送机自动化控制不可缺少的传感元件,本产品可用于输送机胶带跑偏的检测,
两级跑偏开关安装和调整
1.跑偏开关设在输送带两侧,立辊应与输送带边平面垂直,并使输送带两边位于立辊高度1/3处。
2.跑偏开关立辊与输送带正常位置的间距宜为50~100mm。
3.跑偏开关数量应根据输送机长度、类型及布置情况进行确定。两级跑偏开关一般应在输送机头部、尾部、凸弧段、凹弧段和在输送机中间位置进行设置。(注:当输送机较长时,在输送机中间位置可每隔30~35米设1对)
4.跑偏开关应通过安装支架与输送机中间架连接,开关支架应在输送机安装完成后与输送机机架焊接,跑偏开关与跑偏开关支架用螺栓固定。,防止由于胶带跑偏而造成物料溢出等故障。本产品由于安装方便、开关性能可靠,在输送机胶带中广泛应用 。
两级跑偏开关是用于检测带式输送机运行过程中输送带跑偏程度并进行以及自动触发紧急停机的一种保护装置。
使用跑偏开关可防止昂贵的输送带受损害以防止进一步的工矿事故和人生伤害。
两级跑偏开关可防止在运行输送系统里是不可缺少的保护装置,其广泛应用于钢铁厂、火力发电厂、水泥厂、化工厂、港口等等。
FPK-20-30轮船装卸系统专用跑偏开关
![]() |









